











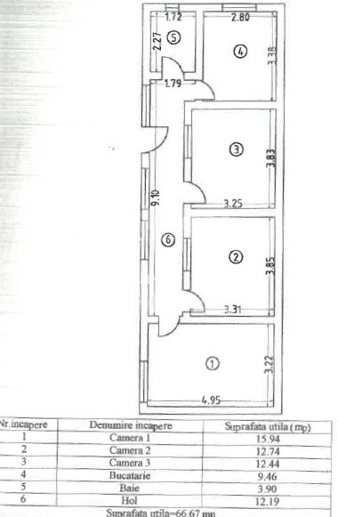
Casa cu suprafata utila 66.67 mp compartimentata in 3 camere, baie, bucatarie si hol.
Imobilul necesită renovare completă și oferă posibilitatea amenajării unei locuințe adaptate propriului stil.
Terenul are o suprafață totală de 320 mp, iar curtea liberă măsoară aproximativ 235 mp.
Poziționarea la strada principală reprezintă un avantaj major, asigurând vizibilitate și acces facil către toate punctele de interes din localitate. De asemenea, distanța până în municipiul Constanța este de aproximativ 10 minute, ceea ce oferă un echilibru ideal între liniștea unei zone rezidențiale retrase și proximitatea față de oraș.
O proprietate cu potențial, potrivită pentru cei care își doresc să locuiască într-un mediu linistit, fără a renunța la accesul rapid către facilitățile urbane.